

KALIA
MARSEILLE 6TH | Vauban
380 000 €
| Type of property | Flat |
| Area | 73 m2 |
| Room(s) | 2 |
| Exterior | Terrasse |
| Current | Art Nouveau |
| Condition | To live in |
| Reference | OP1776 |
Its intimate terrace
The volume of the living room
The materials
CONTACT US

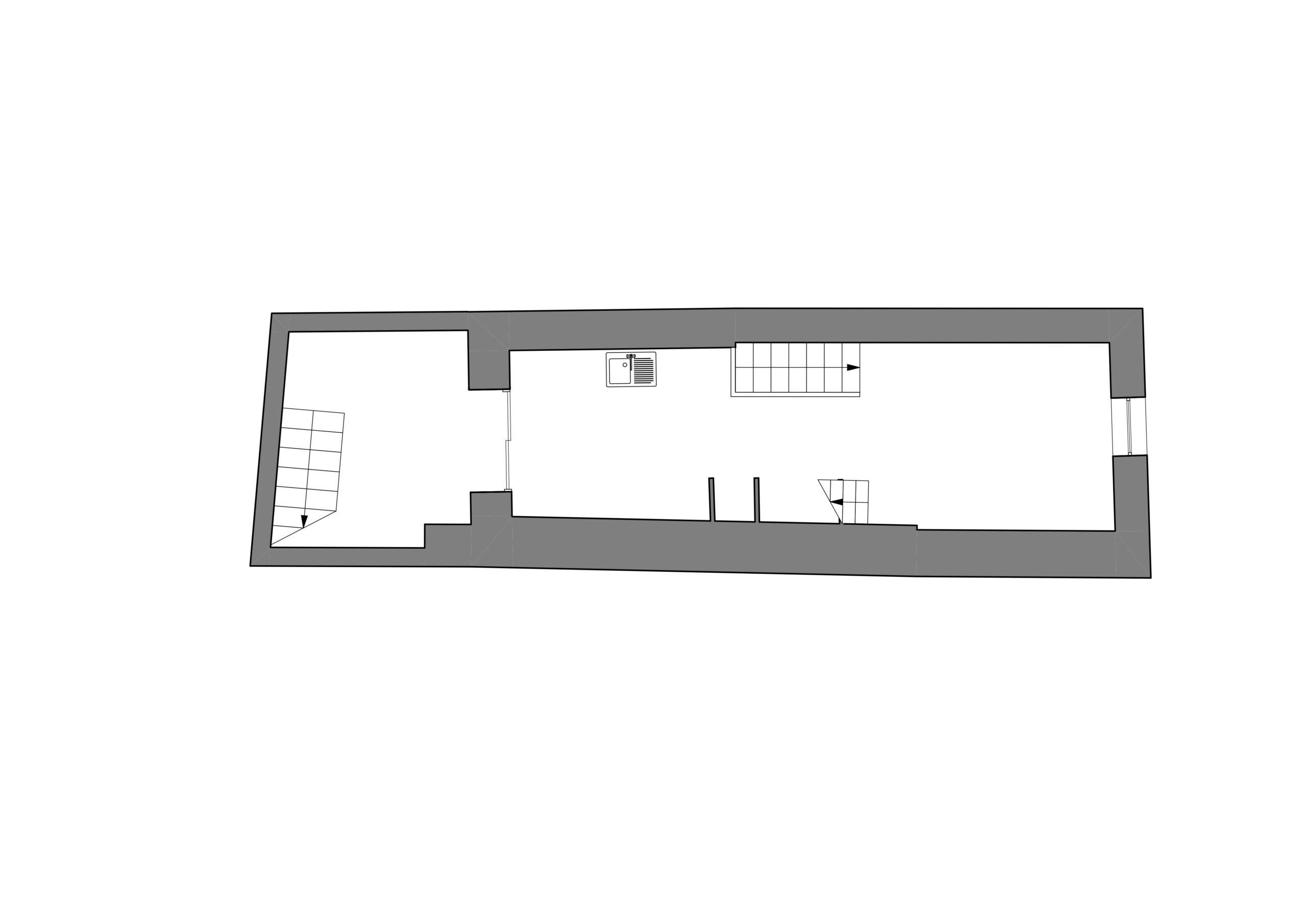
Renovated in 2023, the apartment exudes a cozy atmosphere thanks to the choice of natural materials and soft, luminous hues. Travertine floors, oak parquet, masonry elements and harmonious curves enhance the through spaces. From the independent entrance, the charm is revealed after a flight of stairs, opening onto an intimate 12 m2 terrace, with immaculate whitewashed walls and highlighted by a wooden structure, introducing this unique place. The bay window opens onto the through living room. The simple kitchen is adorned with an off-white Zellige splashback. Further on, the living room volume is held under a double height, accommodating a mezzanine that can accommodate an additional sleeping area. A staircase with built-in storage leads to the lower level, designed as a vast plateau dedicated to the night. The first bedroom unfolds there, extended by a veranda bathed in light. The second bedroom, designed as a cozy nest, benefits from storage units made of light concrete that punctuate the space. They share a bathroom that echoes the codes of the kitchen with its light Zelliges and travertine floor.


A nugget to collect, fresh and pleasant to live in.

















