
ECHO NERO
PARIS ALENTOURS | Colombes
1 550 000 €
| Type de bien | Maison |
| Surface | 210 m2 |
| Chambre(s) | 3 |
| Extérieur | Terrasse, jardin |
| Courant | Contemporain |
| Architecture | À vivre |
| Réference | AP446 |
Ses jeux de couleurs et de matériaux
Les volumes incroyables de la maison
Ses ouvertures-tableaux sur son paisible jardin et son convivial patio
NOUS CONTACTER
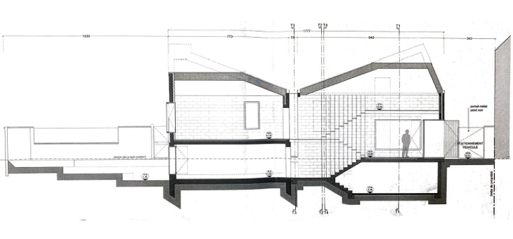
Architecture revisitée, cette maison d'architecte de 210 m2 réhabilitée en 2007 par l'architecte Jacques MOUSSAFIR se dresse fièrement sur un terrain de 300 m2 au coeur de Bois Colombes.
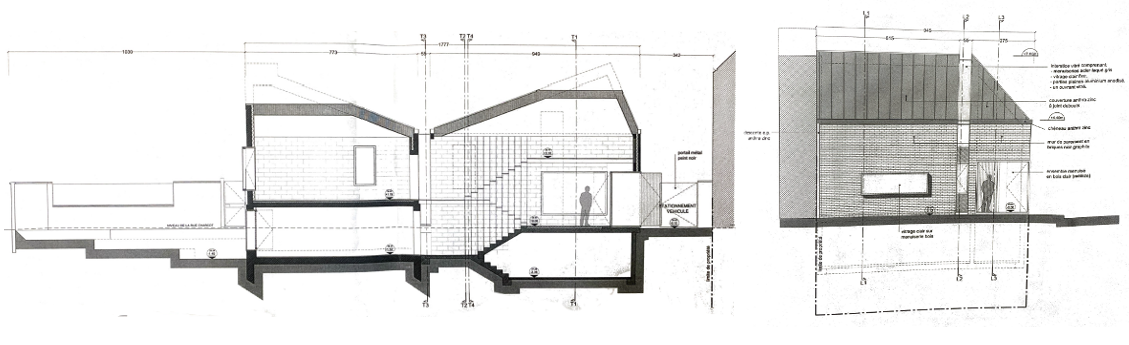
Dès la rue, le regard est attiré par la façade en briques noires profondes, rythmée de larges ouvertures aux encadrements en mélèze couleur miel. La réhabilitation audacieuse se révèle immédiatement : deux bâtiments de différentes époques se font face et dialoguent avec justesse, trouvant une harmonie saisissante grâce à de grandes incrustations vitrées toute hauteur, telles les vertèbres d'une seule et même entité.
À y regarder de plus près, le choix des matériaux, le parti pris monochrome et la répétition de formes similaires créent une véritable unité d'habitation, élégante et racée, où les époques fusionnent avec subtilité.
Comme l'ouverture d'un écrin précieux, l'encadrement presque théâtral du sas d'entrée tout en bois annonce la couleur d'un intérieur contrasté aux volumes engagés.
L'émerveillement est donc de mise à la découverte de l'entrée magistrale desservant l'ensemble des pièces révélant un escalier sur mesure en bois aux angles francs contrastant avec la minéralité du sol chauffé en béton ciré. L'intérieur se déploie dans une esthétique brute et chaleureuse, mêlant briques de parement noires belges (Wienerberger), en écho aux briques d'origine, et parpaings laissés apparents. La lumière d'ouest vient souligner ces matières et renforcer la profondeur des contrastes.
Sa vaste cuisine dinatoire équipée avec son îlot central en inox et bois et son meuble de rangement en bois massif incrusté dans le mur apparaît comme une invitation à l'épicurisme tant elle paraît esthétique, fonctionnelle et conviviale.
Sa large baie vitrée rehaussée de bois et importée d'Autriche révèle d'ailleurs une terrasse aux airs de patio propice aux moments conviviaux.
Comme une succession de surprises, se découvre au niveau supérieur une pièce de vie baignée de lumière car ouverte d'Est en Ouest grâce à ses larges baies vitrées sur mesures encadrées de mélèze d'Autriche transperçant de part et d'autre les façades comme de véritables tableaux sur la nature reposante du jardin et sur l'architecture stimulante de la maison. En point d'orgue, la cheminée rotative Focus, véritable pièce maîtresse, promet des instants chaleureux au coin du feu.
À l'étage, la suite parentale aux belles proportions et à la salle d'eau intimiste rehaussée de mosaïque noir brillant, sobre et élégante est aérée, ouverte à l'ouest et propice à la détente.
Un espace bureau modulaire vient parfaire ce niveau.
En retrait de l'espace de vie, au calme, se retrouvent deux belles chambres ouvertes sur le jardin paysagé à l'Ouest avec leur dressing et leur salle de bain à la mosaïque jaune dynamisante.
Enfin, comble de la praticité, cette maison familiale dispose d'un vaste espace de stockage et d'une buanderie.


Un fabuleux trait d'union entre l'héritage ouvrier de Bois Colombes et la modernité élégante d'une maison familiale à l'architecture racée.
- DIAGNOSTIC
- TRANSPORTSJ BOIS COLOMBES I M 13 I GRAND PARIS
- PLANS
- PARTAGER


















