
RENAISSANCE
PARIS 7ÈME | Gros Caillou
Vendu
| Type de bien | Appartement |
| Surface | 101 m2 |
| Chambre(s) | 2 |
| Courant | Art Nouveau |
| Architecture | À rénover |
| Montant des travaux | 100 000 - 200 000 € |
| Réference | AP423 |
Le charme de ses éléments anciens
Sa modularité
Son emplacement
NOUS CONTACTER
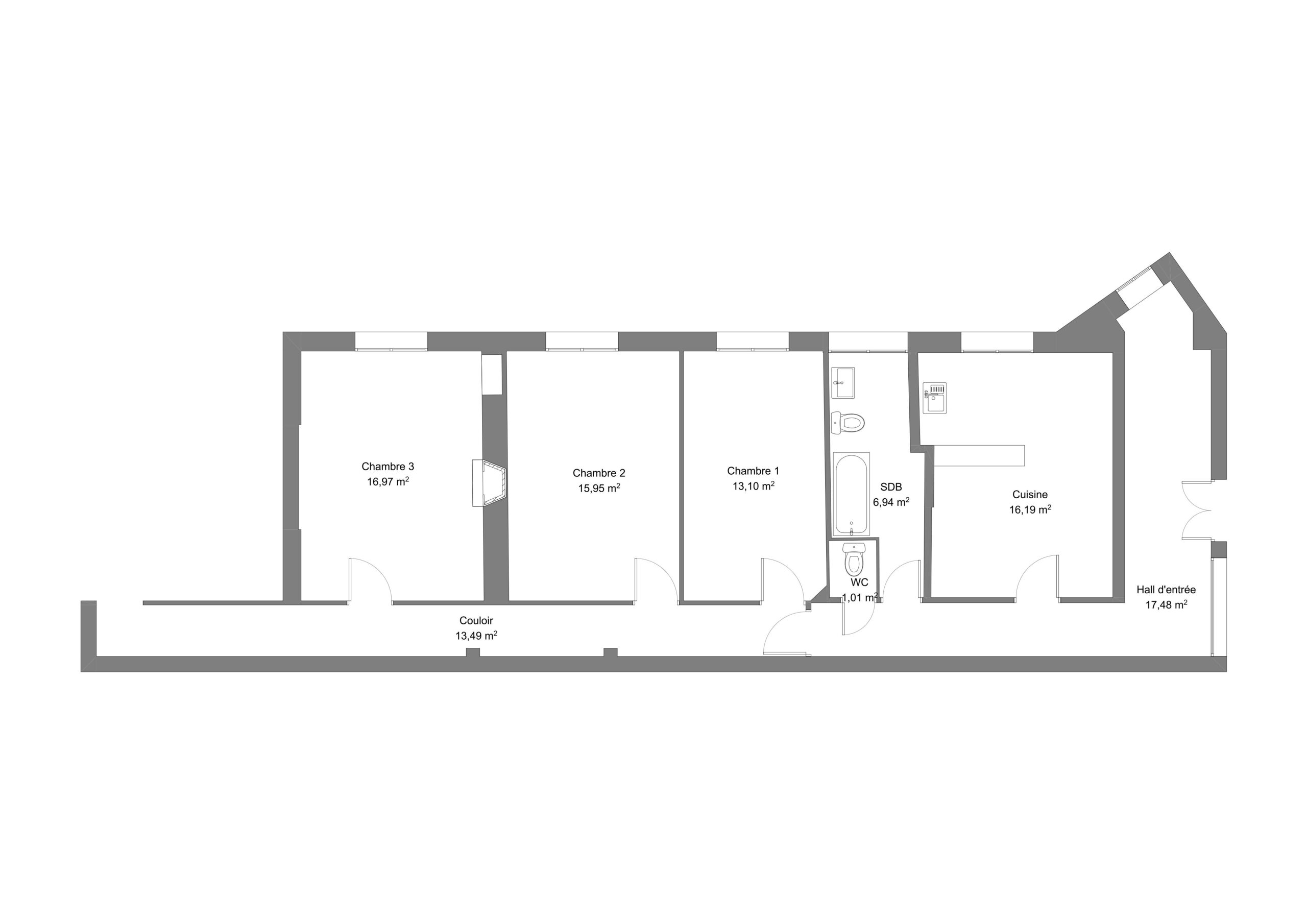
Architecture du XXème siècle, cet immeuble à la belle façade en pierre de taille et aux parties communes soignées, abrite en son 1er étage avec ascenseur, un élégant appartement de 100 m2 situé à deux pas de la Tour Eiffel.
A rénover, cet appartement chargé d'histoire allie élégance classique et potentiel pour un projet professionnel ou résidentiel. L'appartement a conservé tout son charme et son plan d'origine.
Le hall d'entrée aux airs de pièce de réception donne immédiatement le ton. Il pourrait aisément se transformer en espace d'accueil professionnel ou en bureau pour une activité libérale. Un long couloir distribue ensuite les différentes pièces : une cuisine séparée, une salle de bain avec fenêtre et dallage à cabochons, deux chambres et un salon élégant orné d'une cheminée en marbre d'époque surmontée d'un beau trumeau. Le parquet ancien résonne encore du murmure de siècle tandis que les fenêtres donnant sur la cour intérieure laissent modestement entrer une lumière douce, réfléchie par le mur en face. Le plan permet de grandes possibilités d'aménagement, d'ouverture et de création d'un espace au plus grand volume.
Une cave complète ce bien.
ARCHIK met à votre disposition ses équipes d'architectes pour vous accompagner dans la transformation de ce bien singulier, et l'adapter à vos envies et à vos usages.


Un lieu à l'adresse rare, où passé et futur s'entrelacent, prêt à être révélé par un beau projet.













